Το έργο “Οικογένεσις 4” βρίσκεται σε μια από τις πιο προνομιούχες περιοχές του Λυκαβητού, κοντά στο εμπορικό κέντρο της πόλης και αποτελείται από 7 μεγάλα διαμερίσματα πολυτελείας. Ο πρώτος και ο δεύτερος όροφος αποτελούνται από τρία διαμερίσματα των 2 υπνοδωματίων και ο τρίτος όροφος αποτελείται από δύο ανεξάρτητα διαμερίσματα των 3ων υπνοδωματίων.
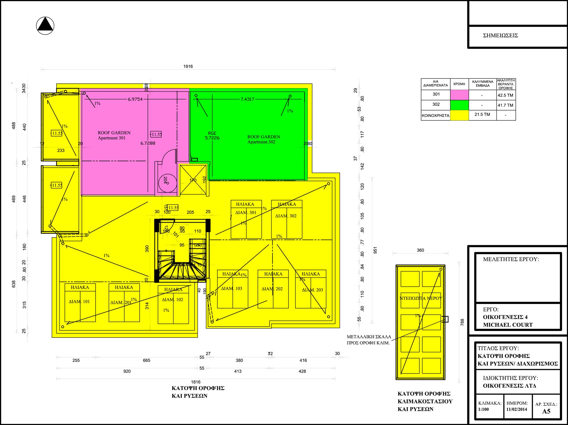
Κάθε διαμέρισμα διαθέτει το δικό του χώρο στάθμευσης και αποθηκευτικό χώρο ενώ τα διαμερίσματα του 3ου ορόφου διαθέτουν το δικό τους κήπο στην οροφή
«ΟΙΚΟΓΕΝΕΣΙΣ 4» – ΔΙΑΜΕΡΙΣΜΑΤΑ ΠΟΛΥΤΕΛΕΙΑΣ ΠΡΟΣ ΠΩΛΗΣΗ
• Βρίσκεται σε μία ήσυχη περιοχή στο κέντρο της πρωτεύουσας
• Κοντά σε σχολεία, πανεπιστήμια και καταστήματα
• Εύκολη πρόσβαση προς τον αυτοκινητόδρομο
• Σχεδιασμένη με γνώμονα τη λειτουργική και αισθητική αρτιότητα
• Άνετοι και λειτουργικοί χώροι
- Θεμέλια από γενική κοιτόστρωση και σκελετός από οπλισμένο σκυρόδεμα σύμφωνα με τους ευρωκώδικες και τον αντισεισμικό κανονισμό.
- Η εξωτερική τοιχοποιία αποτελείται από θερμομονωτικά τούβλα 25εκ. και εξωτερική θερμοπρόσοψη 5εκ. Η εσωτερική τοιχοποιία είναι από τούβλα 10εκ.
- Γίνονται δύο χέρια σουβάς εσωτερικά και δύο χέρια σπάτουλα. Εξωτερικά η πολυστερίνη σοβατίζεται με εποξικό σοβά και δίκτυ.
- Στην ταράτσα οροφής γίνεται θερμομόνωση με πολυστερίνη 5εκ και ελαφρομπετόν. Τόσο η ταράτσα όσο και οι βεράντες μονώνονται με κατρόχαρτο 4mm με ψηφίδα. Όλες οι εξωτερικές τοιχοποϊίες επενδύονται με 5εκ διογκωμένη πόλυστερίνη.
- Το κτίριο εσωτερικά μπογιατίζεται με τρία χέρια emulsion και εξωτερικά με τρία χέρια sandex χρώματος της επιλογής του πωλητή.
- Υψηλής ποιότητας ειδών υγιεινής από επιλεγμένο συνεργάτη.
- Σαλόνι, τραπεζαρία, κουζίνα, διαδρόμοι, υπνοδωμάτια, μπάνια και βεράντες επενδύονται με κεραμικά πρώτης ποιότητας επιλογής του πελάτη.
- Τα κλιμακοστάσια επενδύονται με μάρμαρο επιλογής του πωλητή.
- Τα εξωτερικά πορτοπαράθυρα είναι από σκελετό αλουμινίου σειράς Thermal (Muskita) με διπλό ενεργειακό γυαλί για σκοπούς θερμομόνωσης και ηχομόνωσης.
- Τα κάγκελα στις βεράντες είναι από γυαλί Laminate 16mm.
- Όλες οι εξώθυρες των διαμερισμάτων είναι ασφαλείας και πυρασφάλειας.
- Θα είναι πρεσαριστές από μελαμίνη ανάγλυφη χρώματος της επιλογής του πελάτη.
- Όλες οι θύρες εφοδιάζονται με μηχανισμούς και χερούλια.
- Η κουζίνα είναι μοντέρνου σχεδιασμού. Εσωτερικά θα είναι από μελαμίνη και εξωτερικά από μελαμίνη ανάγλυφη χρώματος της επιλογής του πελάτη.
- Στον πάγκο της κουζίνας τοποθετείται γρανίτης επιλογής του πελάτη.
- Τα ερμάρια θα είναι μοντέρνου σχεδιασμού με ανοιγόμενες θύρες. Εσωτερικά θα είναι κατασκευασμένα με μελαμίνη άσπρη ενώ εξωτερικά θα είναι από ανάγλυφη μελαμίνη χρώματος της επιλογής του πελάτη.
- Όλες οι ηλεκτρικές εγκαταστάσεις γίνονται σύμφωνα με τις πρόνοιες της Α.Η.Κ.
- Η υδραυλική εγκατάσταση είναι με σωλήνες pipe in pipe για το ζεστό και κρύο νερό. Ηλιακός θερμοσίφωνας κλειστού κυκλώματος 150Ltr για κάθε διαμέρισμα.
- Υπάρχουν πρόνοιες για εγκατάσταση κλιματιστικών στο σαλόνι και στα υπνοδωμάτια και πρόνοια για ηλεκτρικά σώματα θέρμανσης στον τοίχο.
- Πλήρης εγκατάσταση για πιεστικό σύστημα.
- Τοποθετείται υδραυλικός ανελκυστήρας τελευταίας τεχνολογίας με stainless steel καμπίνα 8 ατόμων.
- Μοντέρνου Σχεδιασμού με ψηλό δείκτη πυρασφάλειας σύμφωνα με τις απαιτήσεις της Πυροσβεστικής Υπηρεσίας. Ελεγχόμενη κεντρική είσοδος με κλειδαριά και κωδικό ασφαλείας.
- Πλήρης εγκατάσταση έγχρωμης θυροτηλεόρασης για κάθε διαμέρισμα.
- Οι καγκελόθυρες είναι συρόμενες μεταλλικές και φέρουν αυτόματο μοτέρ.
- Θα διαμορφωθεί σύμφωνα με τα αρχιτεκτονικά σχέδια.
- Κάθε διαμέρισμα διαθέτει την δική του αποθήκη.
- Κάθε διαμέρισμα διαθέτει ένα χώρο στάθμευσης σύμφωνα με τα αρχιτεκτονικά σχέδια.
- Διαμορφώνονται με φυτά της επιλογής του πωλητή.
Λίστα διαμερισμάτων
| Όροφος | Αριθμός Διαμερίσματος | Αριθμός Υπνοδωματίων | Αριθμός Μπάνιων | Αποθηκη | Χωρος Σταθμευσης | Covered area m2 | Covered veranda m2 | Roof garden m2 | Communal area m2 | Total m2 | Διαθεσιμοτητα | Price | |
|---|---|---|---|---|---|---|---|---|---|---|---|---|---|
| 1 | 101 | 2 | Μή διαθέσιμο | ΝΑΙ | ΝΑΙ | 77 | 10 | Μή διαθέσιμο | Μή διαθέσιμο | Μή διαθέσιμο | Μή διαθέσιμο | Μή διαθέσιμο | |
| 1 | 102 | 2 | Μή διαθέσιμο | ΝΑΙ | ΝΑΙ | 80 | 10 | Μή διαθέσιμο | Μή διαθέσιμο | Μή διαθέσιμο | Μή διαθέσιμο | Μή διαθέσιμο | |
| 1 | 103 | 2 | Μή διαθέσιμο | ΝΑΙ | ΝΑΙ | 75 | 10 | Μή διαθέσιμο | Μή διαθέσιμο | Μή διαθέσιμο | Μή διαθέσιμο | Upon request | |
| 2 | 201 | 2 | Μή διαθέσιμο | ΝΑΙ | ΝΑΙ | 77 | 10 | Μή διαθέσιμο | Μή διαθέσιμο | Μή διαθέσιμο | Μή διαθέσιμο | Μή διαθέσιμο | |
| 2 | 202 | 2 | Μή διαθέσιμο | ΝΑΙ | ΝΑΙ | 80 | 10 | Μή διαθέσιμο | Μή διαθέσιμο | Μή διαθέσιμο | Μή διαθέσιμο | Μή διαθέσιμο | |
| 2 | 203 | 2 | Μή διαθέσιμο | ΝΑΙ | ΝΑΙ | 75 | 10 | Μή διαθέσιμο | Μή διαθέσιμο | Μή διαθέσιμο | Μή διαθέσιμο | Μή διαθέσιμο | |
| 3 | 301 | 3 | Μή διαθέσιμο | ΝΑΙ | ΝΑΙ | 113 | 24 | 48 | Μή διαθέσιμο | Μή διαθέσιμο | Μή διαθέσιμο | Μή διαθέσιμο | |
| 3 | 302 | 3 | Μή διαθέσιμο | ΝΑΙ | ΝΑΙ | 113 | 12 | 45 | Μή διαθέσιμο | Μή διαθέσιμο | Μή διαθέσιμο | Μή διαθέσιμο |










